
Brandschutzplanung
Sicherheit beginnt mit einem durchdachten Konzept.
Brandschutz ist ein zentraler Bestandteil jeder Bauplanung – unabhängig von der Größe oder Nutzung eines Gebäudes. Wir entwickeln ganzheitliche Brandschutzkonzepte, die bauliche, technische und organisatorische Maßnahmen sinnvoll miteinander verbinden. Ob Neubau, Umbau oder Nutzungsänderung: Mit unserer Expertise sorgen wir für wirtschaftliche, umsetzbare und rechtskonforme Lösungen.
Brandschutz
Ein effektiver Brandschutz ist mehr als nur eine gesetzliche Vorgabe – er schützt Menschenleben, sichert Sachwerte und schafft Vertrauen bei Bauherren, Nutzern und Behörden.
Wir sind Fachplaner Brandschutz (IngKH) und Nachweisberechtigte für vorbeugenden Brandschutz nach NBVO. Für Ihr Bauvorhaben erstellen wir maßgeschneiderte Brandschutzkonzepte, die sämtlichen gesetzlichen Anforderungen entsprechen, sowie wirtschaftlich sinnvoll und umsetzbar sind.
Vorbeugender Brandschutz
Wir planen Brandabschnitte, Fluchtwege und den Einsatz geeigneter Baustoffe – für ein Maximum an Sicherheit im Ernstfall.
Anlagentechnischer Brandschutz
Ob Brandmeldeanlage oder Löschsystem – wir integrieren anlagentechnische Lösungen fachgerecht in Ihr Projekt.
Organisatorischer Brandschutz
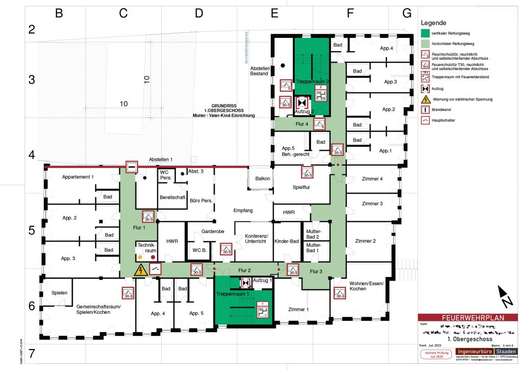
Flucht- und Rettungspläne helfen Ihnen, die richtigen Maßnahmen und Anforderungen nach Arbeitsstättenverordnung organisatorisch umzusetzen.
Wann ist ein Brandschutzkonzept erforderlich?
Das Brandschutzkonzept ist in der Regel bei Sonderbauten erforderlich. Es kann im Regelbau im Rahmen von Abweichungen ebenfalls erforderlich werden. Das Brandschutzkonzept ist eine schutzzielorientierte Gesamtbewertung des vorbeugenden und abwehrenden Brandschutzes, in dem alle relevanten brandschutztechnischen Maßnahmen im Gesamtzusammenhang zur Umsetzung der bauordnungsrechtlichen Schutzziele in sich schlüssig und nachvollziehbar dargestellt sind.
Wir beraten Sie bereits in der Planungsphase zu den geltenden Vorgaben und übernehmen die vollständige Konzepterstellung und Abstimmung mit den zuständigen Stellen.
Was beinhaltet ein Brandschutzkonzept?
Das Brandschutzkonzept wird für jedes Objekt individuell erstellt. Es legt dar, dass die brandschutzrelevanten Regelanforderungen der Bauordnung eingehalten werden. Es beschreibt alle Maßnahmen, die im Brandfall Menschen schützen, Sachwerte erhalten und Rettungswege sichern. Es berücksichtigt bauliche, anlagentechnische und organisatorische Maßnahmen – individuell abgestimmt auf Gebäudeart, Nutzung und geltende Vorschriften.
Das Konzept dient als Grundlage für Genehmigungen und die praktische Umsetzung auf der Baustelle. Es enthält in der Regel textliche, zeichnerische und rechnerische Nachweise.


Brandschutzkonzepte
Ein durchdachtes Brandschutzkonzept ist die Grundlage jedes Bauvorhabens. Es definiert alle präventiven und abwehrenden Maßnahmen, die notwendig sind, um Menschen, Tiere und Sachwerte im Brandfall zu schützen und einen reibungslosen Ablauf der Rettungs- und Löschmaßnahmen zu gewährleisten. Unsere Brandschutzkonzepte erfüllen sämtliche Vorgaben der Landesbauordnungen und der relevanten Normen (z. B. DIN, VDE, VdS).
- Analyse der Brandschutzanforderungen: In einer umfassenden Analyse prüfen wir die brandschutztechnischen Anforderungen des jeweiligen Projekts, um ein maßgeschneidertes Konzept zu entwickeln.
- Risikobewertung: Auf Basis der Gebäudefunktion, -nutzung und -größe führen wir eine detaillierte Risikobewertung durch und entwickeln geeignete Brandschutzmaßnahmen.
- Integration in die Gesamtplanung: Das Brandschutzkonzept wird eng mit der architektonischen und technischen Planung abgestimmt, um eine optimale Funktionalität und Ästhetik sicherzustellen.
- Behördliche Abstimmung: Wir kümmern uns um die Abstimmung mit den zuständigen Behörden, um die rechtzeitige Genehmigung und Zulassung des Brandschutzkonzepts zu gewährleisten.
Baulicher Brandschutz
Der bauliche Brandschutz umfasst alle Maßnahmen, die das Ausbreiten von Feuer und Rauch innerhalb von Gebäuden oder auf angrenzende Objekte verhindern. Unser Ingenieurbüro entwickelt und plant bauliche Schutzmaßnahmen, die den Brandverlauf kontrollierbar machen und Flucht- und Rettungswege sichern.
- Brandabschnittsbildung: Durch die Unterteilung eines Gebäudes in Brandabschnitte wird verhindert, dass sich ein Feuer unkontrolliert ausbreitet. Wir planen die Anordnung von Trennwänden, Decken und Böden, um den Schaden im Brandfall zu minimieren.
- Brandschutzverkleidungen und -abschottungen: Besondere Aufmerksamkeit widmen wir der brandschutztechnischen Abschottung von Leitungsdurchführungen, um zu verhindern, dass sich Feuer oder Rauch über Installationen hinweg ausbreiten.
- Rauchschutz und Entrauchungssysteme: Rauch stellt im Brandfall oft die größte Gefahr dar. Wir planen Entrauchungssysteme und Rauchschutzkonzepte, um Fluchtwege rauchfrei zu halten und die Evakuierung sicherzustellen.
Anlagentechnischer Brandschutz
Der anlagentechnische Brandschutz umfasst technische Installationen, die im Brandfall Leben retten und den Schaden minimieren können. Unser Ingenieurbüro plant und überwacht die Installation von hochmodernen Brandschutzanlagen, die auf das jeweilige Gebäude und dessen Nutzung abgestimmt sind.
- Brandmeldeanlagen: Wir planen Brandmeldeanlagen, die frühzeitig auf Rauch und Feuer reagieren und automatisch Notrufe absetzen. Diese Systeme sorgen für eine schnelle Alarmierung der Rettungskräfte.
- Löschanlagen: Von Sprinkleranlagen bis hin zu speziellen Gaslöschsystemen – wir integrieren Löschanlagen, die automatisch bei Brandausbruch aktiviert werden und das Feuer schnell eindämmen.
- Rauch- und Wärmeabzugsanlagen (RWA): Eine funktionierende Entrauchung ist lebenswichtig, um Fluchtwege rauchfrei zu halten. RWA-Systeme sorgen dafür, dass giftige Rauchgase effektiv abgeführt werden.
- Sicherheitsbeleuchtung und Fluchtwegkennzeichnung: Im Notfall ist es entscheidend, dass Fluchtwege klar erkennbar und ausreichend beleuchtet sind. Wir kümmern uns um die Planung und Integration dieser sicherheitsrelevanten Elemente.
Organisatorischer Brandschutz
Neben baulichen und technischen Maßnahmen spielt auch der organisatorische Brandschutz eine zentrale Rolle. Unsere Experten unterstützen Unternehmen bei der Erstellung von Flucht- und Rettungswegplänen, Evakuierungsplänen und Amokkonzepten, die im Ernstfall Leben retten können.
- Flucht- und Rettungswegpläne: Wir erstellen Flucht- und Rettungswegpläne, die den spezifischen Anforderungen des Gebäudes und der Nutzung gerecht werden und im Notfall die Orientierung erleichtern.
- Brandschutzordnung: Diese regelt die Zuständigkeit und Aufgaben von Personen im Brandfall. Die Brandschutzordnung gliedert sich in drei Teile.
Teil A: Aushang „Verhalten im Brandfall“,
Teil B: Richtet sich an die Mitarbeiter der Organisation.
Teil C: Behandelt die Aufgaben von Brandschutzbeauftragten, Brandschutzhelfern und Führungspersonen.
Fragen zur Brandschutzplanung?
Ob Neubau, Umbau oder Nutzungsänderung – wir erstellen individuelle Brandschutzkonzepte für Ihr Bauvorhaben. Kontaktieren Sie uns für eine unverbindliche Beratung und maßgeschneiderte Lösungen für baulichen, anlagentechnischen und organisatorischen Brandschutz.
Kontaktieren Sie uns – wir beraten Sie persönlich, unabhängig und transparent.
Telefon:02770 911727
E-Mail:kontakt@staaden.net